会議室の紹介
【ステーションプラザ新潟ビル】
新潟駅から徒歩4分の便利なロケーションに位置する「ステーションプラザ新潟ビル 貸会議室」は、ビジネスや学びの場として最適なスペースです。快適な環境で、さまざまな用途にご利用いただけます。
● ご利用シーン
- テレワークやリモートワーク
- 研修やオフサイトミーティング
- 作業やデスクワーク
- 自習や試験
- 勉強会やセミナー
- オンライン研修やオンラインセミナー
●設備のご紹介
- 快適な椅子とテーブル
- エアコン完備で快適な室温
- 高速Wi-Fiでスムーズなオンライン作業
- 延長コードと電源コンセントで安心の電力供給
- 喫煙所も完備でリフレッシュタイムも安心
●スペースの特徴
- 定員4名(最大6名)で広さ11㎡のコンパクトで機能的なサイズ(小会議室)
- 定員12名で広さ16㎡のゆったり空間(大会議室)
- 駅から徒歩4分の好立地でアクセス抜群
- ビジネスから学習まで幅広く対応可能
ぜひ、ステーションプラザ新潟ビルで、充実した時間をお過ごしください。お待ちしております。
※休日は料金が異なります。
施設詳細
- 住所
- 新潟県新潟市中央区東大通2-1-20 ステーションプラザ新潟ビル1階
- 最寄駅
- 新潟駅 (JR信越本線(直江津~新潟)) 徒歩4分
- 面積
- 11.00㎡
- 定員
- 4~6人(対面)
- 価格
- 30分/¥600
- 最低利用時間
- 30分
- 営業時間
- 月〜金 08:00–20:00
- 問い合わせ先
- 株式会社リオ・コンサルティング(03-5156-8866)
設備・レイアウト
- 常設備品
-
喫煙所(3階・5階・7階)
エレベーター2台
男女別トイレ
給湯
近隣コインパーキング
エアコン
テーブル(縦1200×横3600)1台
椅子4脚(予備2脚)
Wi-Fi
電源コンセント
延長コード(2個)
- 有料備品(オプション)
- なし
- 想定利用シーン
-
・テレワーク
・インタビュー・取材
・作業
・デスクワーク
・サテライトオフィス
・コワーキング
・会議・打ち合わせ
・面接・面談
・商談
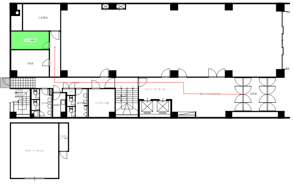
- フロア詳細・図
ご利用について
お支払方法
クレジットカード決済














注意事項
1. 禁止事項飲酒
室内での喫煙(指定の喫煙所 3・5・7階をご利用ください)
異臭・強い匂いを伴う飲食物の持ち込み
騒音・大きな音の発生
2. ご利用時のお願い
入室時間・退室時間は厳守してください。
利用時間の最小単位は30分です。30分未満のご利用はできません。
建物の開館時間にご注意ください。(正面入口は8時~19時、時間外は通用口をご利用ください。)
ご予約後に通知される暗証番号を入力のうえ、入室してください。
Wi-Fiをご利用いただけますが、時間帯や場所により繋がりにくい場合があります。
3. 室内利用に関して
室内の設備・備品を破損または紛失した場合は、修理費用・損害賠償をご負担いただきます。
備品の準備・片付けはご自身でお願いします。
レイアウトを変更した場合は、必ず元に戻してください。
4. 利用後の原状回復
退室時には、簡単な清掃と原状回復をお願いします。
テーブルや椅子の汚れは拭き取ってください。
ゴミは必ずお持ち帰りください。室内に残置することはできません。
お持ち込みいただいた物品はすべてご自身でお持ち帰りください。
清掃を怠った場合やゴミを残置された場合は、清掃費用(5,500円~10,000円以上)を請求する場合があります。
5. その他
ご利用者の荷物・貴重品はご自身の責任で管理してください。盗難・紛失が発生しても当方は責任を負いません。
室内は完全禁煙です。喫煙された場合はクリーニング費用を請求させていただきます。
ご不明な点がある場合は、事前に管理会社へお問い合わせください。
キャンセル規定
30日前〜11日前まで10%10日前〜4日前まで50%
3日前〜2日前まで75%
前日〜当日100%
※返金の際、手数料を引いた金額を入金させていただきます。
お客様の声
-
新潟駅から近く利便性も良く快適な環境で有意義な会議ができました
ご利用年月:2025年5月利用者
-
2回目の利用です。ちょっとした打合せや会合には便利だと思います。
ご利用年月:2025年3月利用者
-
間違えて施錠して部屋を出てしまいましたが、速やかにサポートして頂きました。
迅速に対応して頂き、感謝しています。
部屋は必要なものが揃えてあり、掃除も行き届いてました。
機会があれば、また利用します。ご利用年月:2024年11月利用者
-
シンプル、清潔で会議で利用しましたがとてもよかったです。
ご利用年月:2024年7月利用者